In May of this year I wrote about “Jeff’s New Temporary Audio System” -- a modest stereo setup in the rental house my family moved into after the sale of our previous home of 14 years. In that article I mentioned that we’d bought a piece of land and planned to build a new house from the ground up, including a new listening room. That plan fell through due to that property’s topography. Long story short: Drainage problems made building the house we wanted too expensive. We broke our purchase contract and the plan was scrapped.
But it’s all worked out. Shortly after we abandoned that lot, we found the perfect house plan for me, my wife, and our two kids -- and luckily for us, it was already built. The house is three years old and has everything we wanted, plus some. The kids’ rooms each have a full bath -- no arguing over shower times -- and my wife has a spacious office on the first floor. A big room that could serve as a home gym was completely unexpected, but very much welcomed by my Brazilian jiu-jitsu- and wrestling-trained young ’uns. Lastly, I had a new dedicated listening room -- and a host of new challenges to go with it.
My dream of a first-floor listening room died along with our scrapped building plan, but don’t get me wrong -- I’m nothing but thankful. Real-estate values are on the rebound where we live, in coastal North Carolina, and to find everything we wanted in a custom-built house we could afford was a blessing. Not to mention that we didn’t have to live in the rental for another year -- a definite bonus.
I moved my temporary stereo system straight from the rental into the new listening room. The few items of furniture I’d had in the Music Vault in our old place also went in, but the room treatments designed for that state-of-the-art listening space didn’t. The walls of the new room are still bare, but with its new paint and carpet it looks great. On the plus side, I now have two things the Music Vault lacked, and both are super valuable. First is a bathroom connected directly to the room. In the Music Vault, I had to go downstairs every time I needed a bathroom break. (I know -- woe is me.) Second, I now have a big walk-in closet for storing shipping cartons, cables, and all the doodads audiophiles collect: cleaning supplies, spare footers, backup hard drives, etc.

The remaining challenges to good sound are twofold. First, the room is asymmetrical -- one corner has a bump-out that I wish were not there but can’t do anything about -- but no heavy renovations this time around. I’ll have to work around it as best I can. Second, the space is currently untreated, so those bare walls are highly reflective in all the wrong ways. That problem is more easily addressed, of course, and will surely be the subject of a future article.
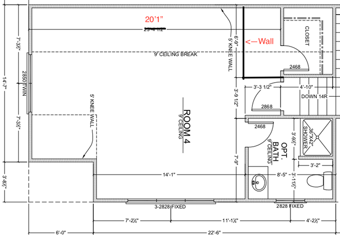
The diagram below is from the house’s original plans and is no longer 100% accurate. I’ve made some crude edits based on the room as it was actually built. The storage area is a little bigger, and was made as deep as the bathroom opposite it.

As it stands now, my Monitor Audio Studio speakers are placed along the 14’ 7” wall opposite the entryway, my electronics between them. I first placed the speakers along the 20’ 1” wall, but I like the shorter wall opposite the entry better, at least with the whole room still untreated: It sounds fuller in the bass, and the soundstage is deeper. Acoustical modeling and expert help might encourage me to change this setup, but for now I’m set.

Because the new space is part of a house already built, and not a converted attic like the Music Vault, I unfortunately couldn’t go all out on its (re)construction. But I’m happy to say that our new place is heavily built, with 2" x 10” rafters and 2 x 6” studs spaced 16” on center, tightly spaced web joists under the floor, and lots of doubled-up, 16” laminated veneered lumber (LVL) for load bearing. I’ve yet to make any alterations to the electrical service, but I do have fiber-optic Internet with Ethernet-over-powerline adapters in the room, along with a rock-solid Wi-Fi connection.

The current stereo system in this untreated room will of course provide a baseline for the sound moving forward. My goal will be to improve the sound of the room and of the components over time, and you’ll read all about that in this space. From here, it should get only better. In fact, next month you’ll read about upgrades to at least three components in the system, provided by Mark Sossa, of distributor Well Pleased Audio Vida of Tyson’s Corner, Virginia. I wanted a second frame of reference for sound in my new room, and Sossa wanted to show off some of the products he distributes. How will those new components, added one at a time, change the sound?

Stay tuned. After that, I hope to address the room acoustics, and after that I’ll be off to the races.
And this time around, you’ll be relieved to know, no corny name for my listening room.
. . . Jeff Fritz
jeff@soundstagenetwork.com

